一、招租标的:龙岩京华中心商场,含商铺、多经点位、广告位,具体为:
(一)拟招租商铺:
铺位号:JH1009,建筑面积:240.49㎡;
铺位号:JH1019-1,建筑面积:39.82㎡;
铺位号:JH1019-2,建筑面积:201.95㎡;
铺位号:JH2008-1,建筑面积:246.35㎡;
铺位号:JH2020,建筑面积:365.3㎡;
铺位号:JH2026,建筑面积:198.95㎡;
铺位号:JH2030,建筑面积:242.81㎡;
铺位号:JH3026,建筑面积:137.73㎡;
铺位号:JH4015,建筑面积:509.89㎡。
招租对象:中华人民共和国境内外的公司、企业、其他组织和个人,除法律另有规定者外,均可参加竞租。
(二)拟招租多经点位
铺位号:1F-DJ03,套内面积:18㎡、铺位号:1F-DJ05,套内面积:2㎡、铺位号:1F-DJ06,套内面积:11㎡、铺位号:1F-DJ08,套内面积:32㎡、铺位号:1F-DJ11,套内面积:15㎡;铺位号:2F-DJ01,套内面积:15㎡、铺位号:2F-DJ02,套内面积:30㎡、铺位号:2F-DJ03,套内面积:15㎡、铺位号:2F-DJ05,套内面积:30㎡、铺位号:2F-DJ08,套内面积:23㎡、铺位号:2F-DJ09,套内面积:38㎡、铺位号:2F-DJ10,套内面积:28㎡、铺位号:2F-DJ11,套内面积:34㎡、铺位号:2F-DJ12,套内面积:25㎡、铺位号:2F-DJ13,套内面积:39㎡、铺位号:2F-DJ15,套内面积:21㎡、铺位号:2F-DJ16,套内面积:29㎡、铺位号:2F-DJ17,套内面积:45㎡、铺位号:2F-DJ18,套内面积:45㎡;铺位号:3F-DJ01,套内面积:15㎡、铺位号:3F-DJ02,套内面积:30㎡。
招租对象:中华人民共和国境内外的公司、企业、其他组织和个人,除法律另有规定者外,均可参加竞租
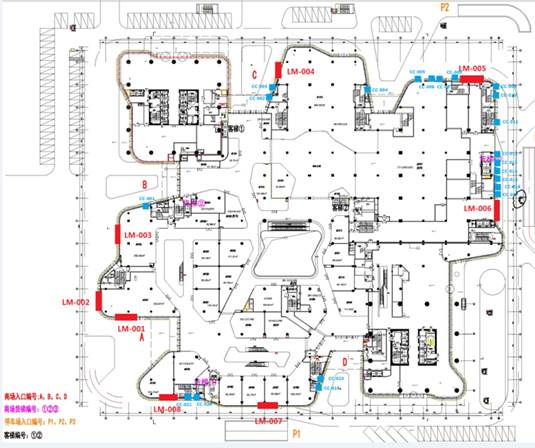
(三)拟招租广告位(附点位图)
外立面幕墙灯箱海报:龙岩大道一侧3个,规格分别为598*980、802*1580、598*980;写字楼北面一侧2个,规格分别为838*1580、601*1580;酒店一侧1个,规格为1005*1580;西陂路一侧2个,规格分别为802*980、798*1580;
1F外场橱窗灯箱海报:B门路口处1个,规格为202*520;C门路口处1个,规格为404*520;1018边1个,规格为202*520;1017边4个,规格为202*520;靠酒店一侧9个,规格为202*520;D门路口处1个,规格为404*520;1002边2个,规格为202*520;
内场客梯LED屏幕9个,规格为41*60;
内场灯箱广告灯箱软膜:-2F 1个,规格为205*255;1F 1个,规格分别为186*324;2F 3个,规格分别为186*292、203.5*117.5、319*305;3F 1个,规格分别为204.5*117.5;4F 2个,规格分别为135*240、235*117;
中庭环形LED 1个;中庭吊挂电动葫芦6个;
精神堡垒灯箱海报:龙岩大道一侧4个,规格为148.8*67.8;西陂路一侧3个,规格为148.8*67.8;
广场灯杆旗 1个,规格为45*130 X2
招租对象:已承租商场内商铺的商户
幕墙LM、橱窗CC广告点位

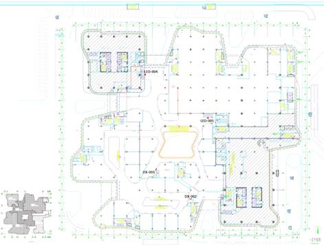
-2F广告点位(客梯LED、灯箱DX)
-1F广告点位(客梯LED、灯箱DX)

1F广告点位(客梯LED、灯箱DX)

2F广告点位(客梯LED、灯箱DX)

3F广告点位(客梯LED、灯箱DX)

4F广告点位(客梯LED、灯箱DX)

二、招商咨询联系电话:0597-2176666
意向登记联系电话:0597-2959191
三、报名截止时间:2019年2月28日17:30时
四、报名地址:龙岩市新罗区西陂街道龙岩大道中688号佰翔京华中心写字楼2F
龙岩京华置业有限公司
|